タカラスタンダード ホーローシステムキッチン「エーデル」にて取り替え工事。

IHクッキングヒーターの配線をつなげて無事完了です。
磯子・上中里住宅にてお打ち合わせ。
桜が満開でとてもきれいでした。


タカラスタンダード ホーローシステムキッチン「エーデル」にて取り替え工事。

IHクッキングヒーターの配線をつなげて無事完了です。
磯子・上中里住宅にてお打ち合わせ。
桜が満開でとてもきれいでした。


システムキッチンの取り替え。
本日着工でしたが、かなり はかどりました。
タカラスタンダード ホーローシステムキッチン 「エーデル(Edel)」
写真ではわかりづらいですが、扉のカラ―は「ピュアピンク = 桜色」です。
本日の現場の駐車場からとてもきれいな桜が見れました。

【施工前】
【施工後】

【施工前】
【施工後】
【施工前】
【施工後】

家電収納ユニットの下にダストボックスが格納できてとてもスッキリしたキッチンスペースになります。
引き出しの中ももちろんホーロー。 清潔に保てて、サッとひと拭き、おそうじも楽です。
キッチン周辺機器を増置して収納をふやし、キッチンをスッキリさせ使いやすくします。
本日、工事スタート。
朝一。 食器棚・カウンターの設置位置等の確認。

家電収納ユニット用配線。 コンセントの移動・増設。
組み立て中。

完成は明日になります。
調湿効果があり、またデザイン性にも優れたLIXIL 「エコカラット」

リビングのアクセントウォールとして
また、マンション北側の部屋の湿度対策として

【施工前(在来浴室)】

【解 体】
【仕込み・土間打ち】
【システムバス組み上げ】

【完 成】 タカスダード システムバス「インペリオ」

【施工前】
【施工後】

クリナップのシステムキッチン「クリンレディ」にてお取り替え。
洗練されたデザインと使いやすさを追求したシステムキッチンです。
おすすめです!
本日午後より、シャッターの解体の立ち合い

解体中

解体完了
左官屋さんと下地補修の打ち合わせ
春遠からじ・・・

現場近くの公園にて
この暖かさで桜の蕾がだいぶ膨らんできていました。
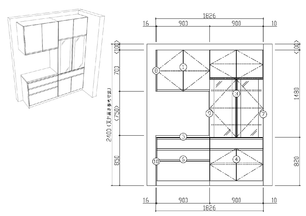
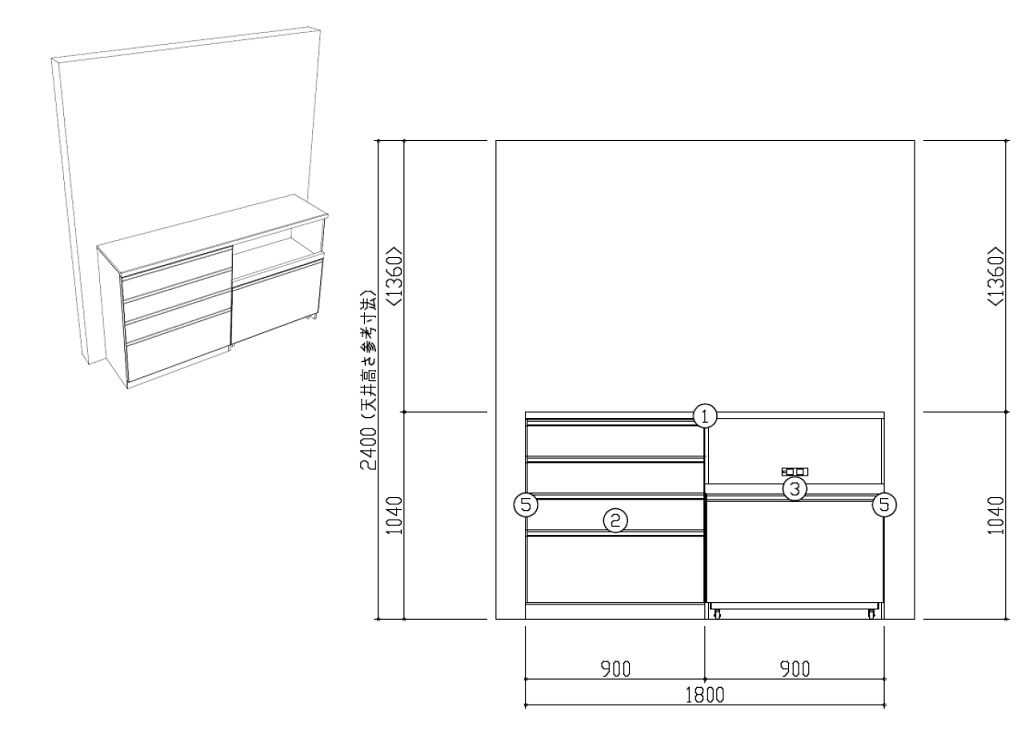
散らかりやすいキッチンまわり。
キッチンの空いた空間に「カウンターユニット」・「トールユニット」・「家電収納ユニット」等を組み合わせて収納をふやします。
今週末、工事予定です。
【プラン①】

【施工前】
【プラン②】

【施工前】
横浜・鎌倉・湘南で自然素材の注文住宅を建てる私たち笠原工務店は、横浜市を中心に横須賀市、川崎市、三浦市、鎌倉市、藤沢市、茅ヶ崎市、大和市、葉山町エリアにおいて、創業大正14年から培ってきた“技術力” “計画力” “実行力”を駆使して、「家族そろって素足で暮らしたくなる健康で快適な住まいづくり」をモットーに「家縁(ごえん)」を大切に考え、地元に貢献する事を心がける工務店です。
〒233-0007 横浜市港南区大久保1-15-16 TEL:045-842-6603 フリーダイヤル:0120-84-6603 E-MAIL:info@kasahara-koumuten.co.jp
施工エリア:横浜市 横須賀市 鎌倉市 藤沢市 茅ヶ崎市 川崎市 大船 葉山町 辻堂 三浦 大和 その他周辺地域もご相談承ります。